каталог товаров
ваш город:
Бердянск
Пн-Пт: 9.00-18.00 сейчас: 15:25 МСК

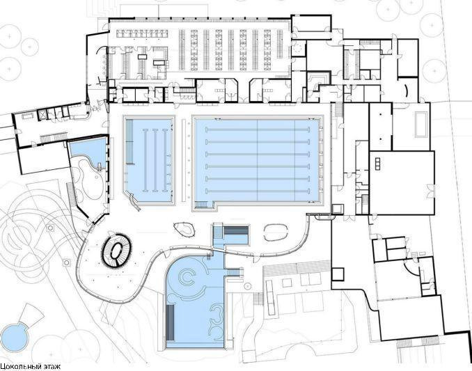
Модернизация акватермы Штраубинг Германия

Штраубинг, Германия 2021

Архитекторы: studioGA Architekten
Клиент: муниципалитет города Штраубинг
Территория проекта: 3.500 m²
Площадь воды: 526 m² внутри помещения, 2.350 m² открытых бассейнов 
Стоимость строительства: € 17млн.

Пристройка к зданию с органично перетекающим зимним садом обеспечивает крытому бассейну переходную зону между строгими формами существующего здания и парковыми сооружениями на открытом воздухе. Природа пронизывает пристройку, которая служит связующим звеном между внутренним и внешним пространством. Ее стальная конструкция имитирует навес под деревьями, а большие застекленные фасады приближают к природе. В качестве особой достопримечательности в стальную конструкцию интегрированы приподнятая галерея и две водные горки.
Раздевалки, санитарные комнаты и входная зона подверглись кардинальным архитектурным изменениям, что позволило объединить геометрическую концепцию и, в тоже время визуально разграничить отдельные зоны.
На открытой территории предусмотрена новая детская зона с бассейном, геометрически адаптированная к стальным "деревьям" зимнего сада, чтобы создать гармоничное, плавное перетекание в существующий объект.
Полная реконструкция существующего бассейна привела его в соответствие с самыми современными техническими стандартами.

Модернизация акватермы Штраубинг Германия Модернизация акватермы Штраубинг Германия Модернизация акватермы Штраубинг Германия Модернизация акватермы Штраубинг Германия Модернизация акватермы Штраубинг Германия
50